Wohnhausumbau Vor den Knäppen in Oelde
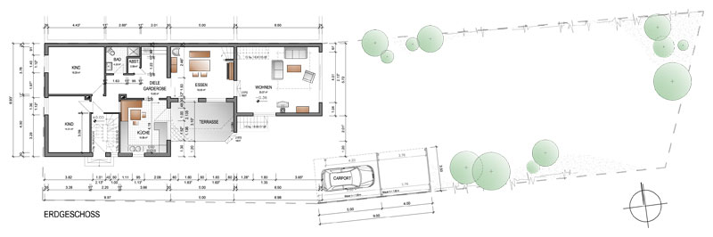
Umgestaltung des EG und OG mit neuer Dachterrasse
Wohnfläche: ca. 226 m² in 2 Wohnungen
Fertigstellung: April 2007
Umgestaltung des EG und OG mit neuer Dachterrasse
Wohnfläche: ca. 226 m² in 2 Wohnungen
Fertigstellung: April 2007