Skip to main content
Skip to page footer
Aktuelles
Projekte
Submenu for "Projekte"
Wohnen
Mehrfamilienhäuser Weitkamp II in Oelde
Mehrfamilienhaus Eiswiese in Oelde
Mehrfamilienhaus Ostenfelder Straße in Oelde
Mehrfamilienhaus Schmale Gasse in Oelde
Siedlung in Modulbauweise in Oelde
Einfamilienhaus Wismarer Straße in Warendorf
Einfamilienhaus mit Gewerbeanteil in Stromberg
Umbau Wiesenstraße in Stromberg
Mehrfamilienhaus Gröningsweg in Oelde
Umbau und Erweiterung Zur Axt in Oelde
3 Mehrfamilienhäuser Von-Galen-Straße in Oelde
Zweifamilienhaus in Ostenfelde
Mehrfamilienhaus Stromberger Tor in Oelde
Einfamilienhaus Mozartstraße in Oelde
Mehrfamilienhaus (12 WE) Von-Galen-Straße in Oelde
Barrierefreies Einfamilienhauses Zum Sundern in Oelde
Mehrfamilienhaus (6 WE) Heinrich-Lückenkötter-Straße in Oelde
Einfamilenhaus Carl-Sonnenschein-Straße in Oelde
Kernsanierung Düdingsweg 4 in Oelde
Doppelhaus Tiefe Straße in Nottuln
Mehrfamilienhaus In der Geist in Oelde
Wohn- und Geschäftshaus Wallstrasse in Oelde
Einfamilienhaus Gerichtsstraße in Oelde
Betreutes Wohnen in Stromberg
Mehrfamilienhaus in Greven
Gewerbe- / Industriebau
Erweiterungen Firma Febromed in Oelde
Wettbewerb
Firmenneubau Albert-Einstein-Straße in Oelde
Firmenneubaukonzept A2 Forum in Oelde
(current)
Wohn- und Geschäftshaus Bahnhofstraße in Oelde
Firmenneubau Gewerbegebiet "A2 Oelde"
Neubau Tennisheim "Blau-Weiss e.V." in Oelde
Kunden-Lounge in einer Produktionshalle in Oelde
Entwurf einer Fertigungshalle mit Büro in Münster
Fa. Feige Filling GmbH in Bad Oldesloe
Firmenneubau und Erweiterung Haver IBAU India in Vadodara, Indien
Sparkassenfiliale in Stromberg
Firmenneubau und Erweiterungen Weeke Bohrsysteme GmbH in Herzebrock
Produktionsstätte Am Landhagen in Oelde
Betriebserweiterung Werner-Habig-Straße in Oelde
Haver & Boecker: Nutzungsänderung Magazin in Oelde
Bauen im Bestand
Wohnungsmodernisierung Vor den Knäppen in Oelde
Umbau Wiesenstraße in Stromberg
An- / Umbau eines denkmalgeschützten Wohnhauses in der Geiststraße in Oelde
Umbau eines Ladenlokals "Dinasevanasabha" in Oelde
Umbau und Erweiterung des Bernardushauses Carl-Haver-Platz in Oelde
Umbau und Erweiterung Zur Axt in Oelde
Wohnhausumbau Vor den Knäppen in Oelde
Mehrfamilienhaus in der Spellerstrasse in Oelde
Wiederaufbau eines Fachwerkhauses in Ennigerloh-Ostenfelde
Internationale Projekte
Haver Technologies Tianjin, China
Haver & Boecker Pedro Leopoldo, Brasilien
Haver IBAU India Erweiterung
Haver IBAU India Neubau
Haver & Boecker Andina, Chile
Sanierung Mehrfamilienhaus, Sizilien
Öffentliche Gebäude
Pfarrkirche St. Jakobus in Ennigerloh
Erweiterung der Theodor-Heuss-Schule (nun Gesamtschule) in Oelde
Seniorenzentrum "Am Eichendorffpark" in Oelde-Stromberg
Sonstiges
BIBO Berufsinformationstage Beckum / Oelde
Diplomarbeit Ron Heiringhoff
Leistungen
Profil
Submenu for "Profil"
Philosophie
Team
Vita
Geschichte
Publikationen
Kontakt
Submenu for "Kontakt"
Standort
Impressum
Datenschutzerklärung
Sitemap
Suche
You are here:
Architekturbüro Heiringhoff
Projekte
Gewerbe- / Industriebau
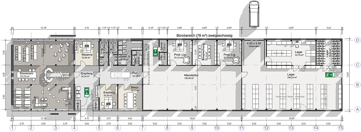
Firmenneubaukonzept A2 Forum in Oelde
Firmenneubaukonzept A2 Forum in Oelde
Entwurfskonzept für einen Firmenneubau im Gewerbegebiet A2 in Oelde
Show larger version
Show larger version
Show larger version
Show larger version
Show larger version
Show larger version
Show larger version
Show larger version